Powered by

Metal 2025 and Historical Metallurgy Society Post Conference Trip: Visit to South Wales Industrial and Ironworking Heritage   iCal entry for this event

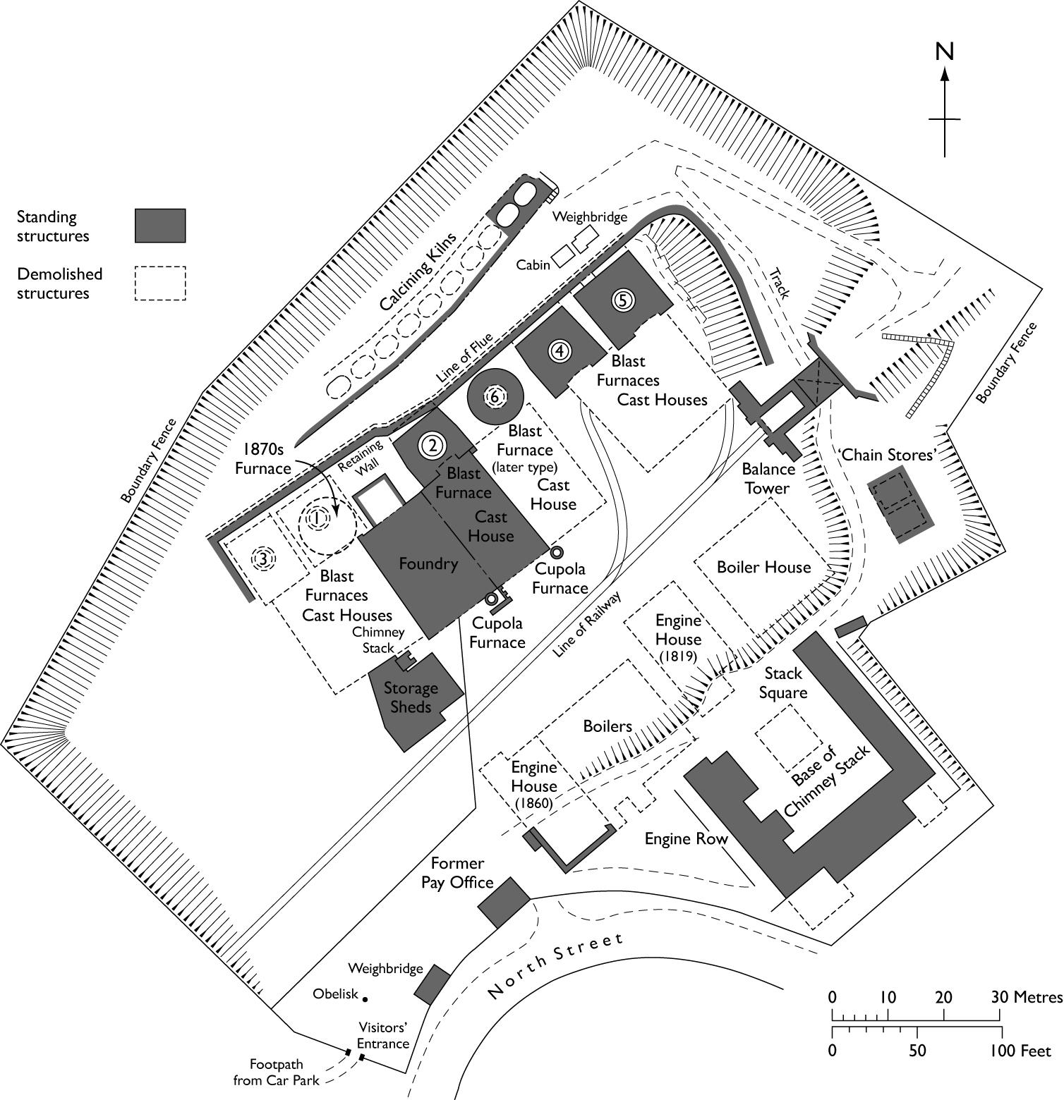
Following on from the Metals 2025 Conference in Cardiff 1-5 September 2025, the Historical Metallurgy Society is pleased to offer a 1 day post-conference trip by coach visiting two outstanding Industrial Heritage sites in South Wales: The Newport Transporter Bridge and Blaenavon Ironworks World Heritage Site!

We will travel by coach from Cardiff to the Newport Transporter Bridge to see the new Visitor Centre and view conservation engineering works in progress over coffee, tea and refreshments. We’ll then travel to the Blaenavon World Heritage Site for a tour led by a retired metallurgist familiar with the site and its association with Sidney Gilchrist Thomas. Explore more of the site on your own before departing at 14.30 for return to Cardiff.


Itinerary

9.00 Depart Corbett Road Coach Parking Cardiff – Travel to Newport Transporter Bridge

9.30 Arrive Newport Transporter Bridge

11.00 Depart Transporter Bridge, travel by coach to Blaenavon Ironworks

11.45 Arrive Blaenavon

14.30 Depart Blaenavon for return to Cardiff (arrive approximately 15.30)


To book: contact Eric Nordgren or reception at Metal2025 in person.

For help with booking email secretary@historicalmetallurgy.org.

Location: Corbett Road Coach Parking in Cardiff CF10 3UP is where we will meet and depart by coach. You can download maps from 'Downloads' under the image.

Contact:

Ticketing - show past events

Sorry this event is in the past.

Code Description Date of event Start time End time Availability Places
available
Price Book
places
260 Tickets are available from Eric Nordgren or Metal2025 reception. 06-09-2025 09:00 15:30 closed 71